销售经理:肖经理
公司网址:www.clzqzzcj.com
联系邮箱:497513790@qq.com
集团总部:湖北省随州市南郊平原岗程力汽车工业园
超长质保
专业团队
全程监督
合作共赢


8-22方移动压缩垃圾站(垃圾箱),8方移动压缩垃圾箱,10方移动压缩垃圾箱,12方移动压缩垃圾站
湖北程力集团厂家直销:8-22方可移动压缩垃圾箱报价,勾臂拉臂垃圾车图片视频,想了解更多挂桶对接环卫车请致电:15826751056
现阶段城镇垃圾收运体系简析
由于我国尚处在城市化进程的过程中,城镇乡基础建设水平各不相同,所以存在多种垃圾收集方式。
城市垃圾的收集方式主要有:手推车零散垃圾收集、后装式垃圾压缩车定点收集、垃圾桶收集、摆臂式垃圾车收集等方式。
垃圾收集的特点是:垃圾收集点的垃圾大多数露天存放,因垃圾收集容器密封性能不好存在垃圾污水外溢,臭气冲天,且定点收集垃圾的后装式垃圾压缩车工作时噪音大、耗能高,对周围环境和附近居民生活影响很大。
城区内的主要垃圾收运点存在场地小、道路狭窄、临近居民区等实际制约条件。
根据以上特点,我们为用户提供可以改善环境、提高效率、节省费用、降低劳动强度的垃圾收集、压缩处理、转运的一体化解决方案--—移动智能垃圾压缩站+多功能拉臂车方案。

移动式压缩垃圾设备简介
我公司生产的智能移动压缩垃圾站设备构成:由翻转机构,压缩机头,控制系统,集装箱,后门(卸料口)构成。
适用性高:该设备占地面积小,仅需铺设简单的地面钢板导轨,无需埋件,就可快速安装到位使用,适用于垃圾桶,手推车,微型收集车的进料,压实密度0.65-0.85T/立方


主要部件介绍:
CLW-JGLT生活垃圾压缩机整机结构由压缩腔、压缩头、料斗举升装置及连体式料斗、压缩垃圾存储部分、后门及密封系统、液压系统、控制系统组成。
①压缩腔和压缩头
CLW-JGLT的压缩头、压缩腔及垃圾存储箱等关键部位均使用高强度、耐磨、耐腐蚀钢板制造,使整个设备的综合使用寿命得到了极大提高,并且在各个旋转铰接部位全部采用自润滑轴承或关节轴承,极大提高了转动部位的寿命。
压缩头由耐腐蚀高强度合金钢板焊接而成,采用无导轨设计,四周间隙小,可有效防止垃圾滞留在机体内。压缩腔内设置固定抓钩,可防止压挤进去的垃圾回弹,压缩推板采用双曲线外形设计,可使压缩比达到大,投料口大,投装垃圾更方便。压缩头的所有部件均进行了严格的防腐、防锈、耐磨处理。
②料斗及举升机构
CLW-JGLT料斗及举升装置,是通过举升机构将特制的料斗与箱体连为一体的系统总成。需要装入垃圾时将料斗放下,倒入垃圾,然后通过举升机构将料斗举起,把垃圾倒入压缩腔。运输时料斗直接盖在压缩腔上方,与箱体一起转运。这种结构使用方便,用户的使用现场仅需380V外接电源即可开始使用,充分提高了设备的转场使用效率。该设备的料斗举升机构是在充分研究了欧洲发达国家以及国内典型产品的基础上,汲取各家之长,独立设计开发的,拥有完全的自主知识产权,具有重量轻,强度高,举升灵活、可靠,耐久性好的突出特点。而我们配备的料斗不论用户是使用板车、电动车还是小型自卸车和拖拉机,均能进行配套使用。
↓ ↓

③存储箱体
箱体采用高强度钢材焊接而成,焊接工艺高,成型符合大众审美,压缩腔两侧带污水排放装置。
④后门总成及锁紧、密封系统
后门总成采用整板制作,造型圆滑美观。后门锁紧采用液压油缸锁紧机构,从拉臂车取动力,自动操作,操作简单可靠,且后门开启角度达100度,使垃圾倾倒更彻底干净。整体式双唇结构密封胶条,具有优异的密封性能,能有效防止污水的渗漏和气味的散发,即便在无法排污的情况下也能保证设备在压缩及转运过程中不会出现污水泄露的现象。
⑤液压系统
液压系统主要部件选用全球各大知名品牌的产品,均为原装进口件,保证液压系统的可靠性。该设备具备欧洲同步领先技术,所以对噪声的控制更加的严格,对主要的噪音来源都进行了降噪措施,比如在结构件的接触部位均加装了缓冲装置; 液压系统采用抽屉式安装,外形美观,节约空间,同时便于液压系统检修。
设备只需要一台5.5KW电机即可实现全部的工作动作,平均每处理1吨垃圾耗电量仅为0.7度左右,能源消耗十分有限。
⑥电气控制系统
电器控制系统采用微处理器(PLC)系统,即可实现自动记忆程序控制的连续自动操作,又可使用手工点动操作。各机构运转通过预设程序相互关联、互锁,有效确保设备运行的安全性。电气系统配有15KAV的稳压电源,并且接地保护。系统具有垃圾装载量显示和满载预警及指示功能。
*系统自带故障诊断系统,自诊断包括油温高温警报,相位错误警报,马达过载报警和机械卡死故障报警。
所有的指示信息、预警、报警以及箱体内垃圾压缩的填充情况均可在控制面板上液晶显示器里清晰显示。
系统具有良好的安全防护性能,配置了紧急停止控制器和紧急回推控制器,保证设备在使用时一旦出现问题可以立即停机;并使压缩头不论在任何工位均可退回至初始工作位置
整个系统电器元件均采用带有防水功能的器件,同时在安装过程中使用防护罩和密封胶条进行密封防护。
外接电源接口采用进口带相位转换功能的元件,可以根据使用现场情况快速调节相序,确保设备在任何情况下均可正常使用。

↑ ↑
将收集到的垃圾倾倒在料斗上,通过翻转机构升降,实现垃圾填装至压缩腔中
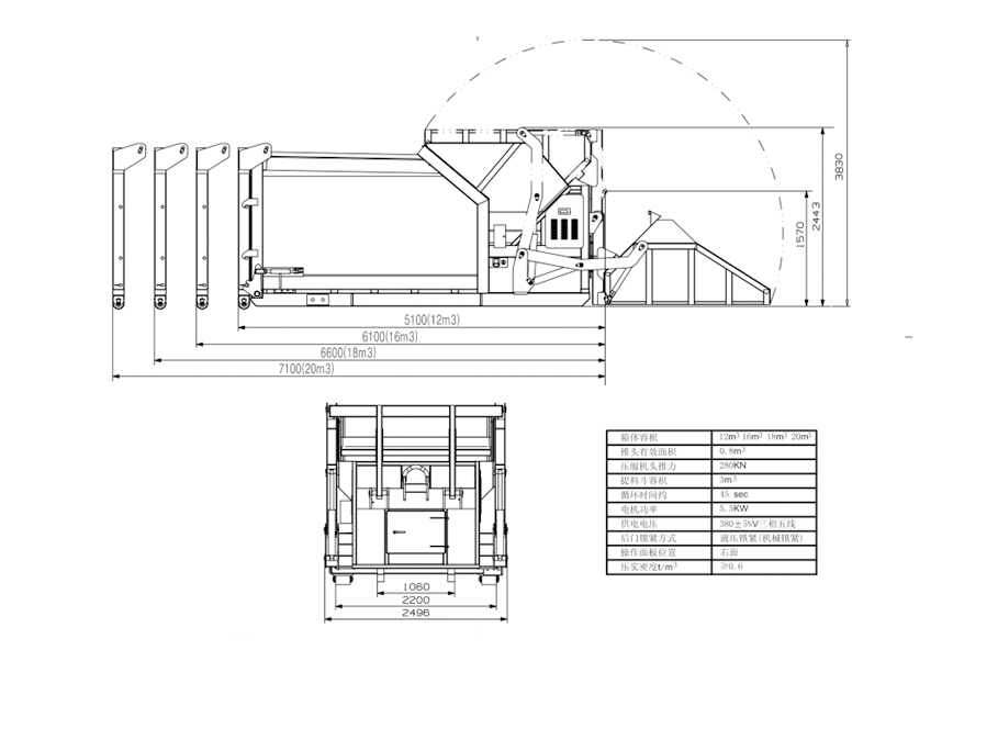
不同容积的移动压缩垃圾箱,因其长度不同,所配套的勾臂车辆箱长和承载动力有所不同,
多种移动压缩垃圾站搭配车辆方案,可详询15826751056
↓ ↓


标签:

销售经理:肖经理
联系方式:13997871266
公司网址:www.clzqzzcj.com
邮箱地址:497513790@qq.com
公司地址:湖北省随州市南郊平原岗程力汽车工业园